Let op: Tweakers stopt per 2023 met Tweakblogs. In
dit artikel
leggen we uit waarom we hiervoor hebben gekozen.
Winter is coming
Dit is ondertussen de 4e blog welke ik ga schrijven.
Deze heeft net als mijn voorgaande blogs te maken met het verbouwen van een boerderij tot een dubbele woning. Sinds de laatste blogs zijn we niet veel verder gekomen. We wachtten nog steeds op de vergunningen. We weten ondertussen zeker dat we de vergunning gaan krijgen, alleen wanneer is lastig
Ik krijg hier en daar wel eens de vraag over hoe het leven in een keet nu bevalt... Bij deze een korte gebruikers review van het wonen in een keet
Intro
We wonen nu al een maand of 5 in een bouw unit. Deze units hebben we gekocht. Na wat speur werk kwam ik al gauw uit op een huurprijs van 600 euro per maand voor een degelijke tijdelijke woonunit.
Dat vonden we teveel. Gezien het feit dat we geen strakke planning hebben voor het af hebben van dit project vinden we het vervelend als we voor elke vertraging 600 euro in de maand extra kwijt zijn.
Zo zie je maar weer... Het wachtten op de vergunning duurt nu al een maand of 5, terwijl we dachten dat dit maar een maand of 3 zou duren. Zo... De eerste 1200 euro is uitgespaard
Woonruimte
We hebben 3 keten van 6x3. In totaal dus 9x6=54m2
We wonen hier met z`n 4tjes. Onze dochters zijn 5 en anderhalf.
De vorige eigenaars hebben ook geruime tijd in deze keten gewoond (met 3 kids
). Zij hebben de aanpassingen gedaan aan deze units zodat ze als huis kunnen functioneren. Eerder waren het (ik denk) uitvoerders kantoortjes.
Ze hebben het zo aangepast dat alles op elektriciteit gaat. Alleen het koken gaat op een fles camping gas.
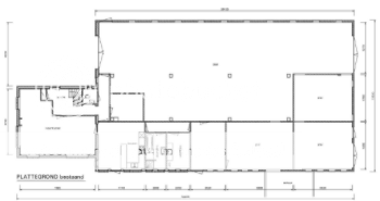
Plattegrond

(overigens geschetst door de vorige eigenaar
)
Foto`s
Vooraanzicht

Zij aanzicht

Woonkamer

Keuken


Slaapkamers


Hier slaapt de oudste. Op de plattegrond zie je dat hier eerder 2 slaapplekken waren. Dit is nu niet meer zo. Ze heeft dus bijna 1 hele keet voor zichzelf

De slaapkamer van de jongste. Hier kan net haar ledikant staan, en een commode. Meer is ze (nu) niet nodig.
Badkamer

Ja, ik weet het... Gigantisch! Boven het bad hangt een grote 80L boiler. Deze voorziet ons van het warme water.
Ja, onze slaapkamer staat er niet op. Dit is ook zo klein dat ik er geen fatsoenlijke foto van kan maken
Ons bed kan er staan, en we hebben kast ruimte... Thats it!
Voor de keten staat nog een kleine aanbouw. Hier hebben we nog wat opbergruimte, en staat de wasmachine/droger.
Plus
Het is niet veel.... Maar het is afbetaald
We wonen naast ons "project" hierdoor ga je sneller nog even klussen.
In principe missen we niets... We hebben een afwasmachine, we hebben zelfs een heus bad!
Min
Het heeft voor mij wel even geduurd voordat ik hier kon wonen. In het begin vond ik het verschrikkelijk... Je woont in een stel afgeleefde units. Ik moest echt een knop omzetten om hier te kunnen blijven wonen.
De isolatie van deze keten is... Vrijwel niets. Dat was in de zomer een probleem (het werd hier echt warm! 35+), maar de winter word misschien nog erger.
Vocht! We hebben echt last van vocht in deze units. Vooral in onze slaapkamer. Deze grenst ook aan de doucheruimte. Hier moet ik echt nog iets mee.
In mijn vorige blog gaf al iemand aan dat het een goed idee was om stelcon platen te gebruiken om de keten op te zetten. Dit heb ik niet gedaan, maar het was echt een goed idee geweest. Mocht iemand ooit tijdelijk in keten gaan wonen... Doe dit wel!
Winter is coming!

In de units zitten 4 elektrische kachels. Ik heb nog een losse erbij gekocht.
Voor de echte kou staat er nu een pelletkachel. Ik hoop dat dit genoeg is om de temperatuur acceptabel te houden als het onder 0 word. We zullen het zien....
De leidingen moet ik nog iets mee... Deze moet ik nog zien te isoleren, zodat we niet bij de eerste de beste keer grond vorst alles dicht hebben zitten.
Al met al... Het is woonbaar, en het voelt voor ons allen als thuis.
Hopelijk kan ik binnenkort met de volgende blog komen... Dat de vergunning binnen is
Deze heeft net als mijn voorgaande blogs te maken met het verbouwen van een boerderij tot een dubbele woning. Sinds de laatste blogs zijn we niet veel verder gekomen. We wachtten nog steeds op de vergunningen. We weten ondertussen zeker dat we de vergunning gaan krijgen, alleen wanneer is lastig
Ik krijg hier en daar wel eens de vraag over hoe het leven in een keet nu bevalt... Bij deze een korte gebruikers review van het wonen in een keet
Intro
We wonen nu al een maand of 5 in een bouw unit. Deze units hebben we gekocht. Na wat speur werk kwam ik al gauw uit op een huurprijs van 600 euro per maand voor een degelijke tijdelijke woonunit.
Dat vonden we teveel. Gezien het feit dat we geen strakke planning hebben voor het af hebben van dit project vinden we het vervelend als we voor elke vertraging 600 euro in de maand extra kwijt zijn.
Zo zie je maar weer... Het wachtten op de vergunning duurt nu al een maand of 5, terwijl we dachten dat dit maar een maand of 3 zou duren. Zo... De eerste 1200 euro is uitgespaard
Woonruimte
We hebben 3 keten van 6x3. In totaal dus 9x6=54m2
We wonen hier met z`n 4tjes. Onze dochters zijn 5 en anderhalf.
De vorige eigenaars hebben ook geruime tijd in deze keten gewoond (met 3 kids
Ze hebben het zo aangepast dat alles op elektriciteit gaat. Alleen het koken gaat op een fles camping gas.
Plattegrond

(overigens geschetst door de vorige eigenaar
Foto`s
Vooraanzicht

Zij aanzicht

Woonkamer

Keuken


Slaapkamers


Hier slaapt de oudste. Op de plattegrond zie je dat hier eerder 2 slaapplekken waren. Dit is nu niet meer zo. Ze heeft dus bijna 1 hele keet voor zichzelf

De slaapkamer van de jongste. Hier kan net haar ledikant staan, en een commode. Meer is ze (nu) niet nodig.
Badkamer

Ja, ik weet het... Gigantisch! Boven het bad hangt een grote 80L boiler. Deze voorziet ons van het warme water.
Ja, onze slaapkamer staat er niet op. Dit is ook zo klein dat ik er geen fatsoenlijke foto van kan maken
Voor de keten staat nog een kleine aanbouw. Hier hebben we nog wat opbergruimte, en staat de wasmachine/droger.
Plus
Het is niet veel.... Maar het is afbetaald
We wonen naast ons "project" hierdoor ga je sneller nog even klussen.
In principe missen we niets... We hebben een afwasmachine, we hebben zelfs een heus bad!
Min
Het heeft voor mij wel even geduurd voordat ik hier kon wonen. In het begin vond ik het verschrikkelijk... Je woont in een stel afgeleefde units. Ik moest echt een knop omzetten om hier te kunnen blijven wonen.
De isolatie van deze keten is... Vrijwel niets. Dat was in de zomer een probleem (het werd hier echt warm! 35+), maar de winter word misschien nog erger.
Vocht! We hebben echt last van vocht in deze units. Vooral in onze slaapkamer. Deze grenst ook aan de doucheruimte. Hier moet ik echt nog iets mee.
In mijn vorige blog gaf al iemand aan dat het een goed idee was om stelcon platen te gebruiken om de keten op te zetten. Dit heb ik niet gedaan, maar het was echt een goed idee geweest. Mocht iemand ooit tijdelijk in keten gaan wonen... Doe dit wel!
Winter is coming!

In de units zitten 4 elektrische kachels. Ik heb nog een losse erbij gekocht.
Voor de echte kou staat er nu een pelletkachel. Ik hoop dat dit genoeg is om de temperatuur acceptabel te houden als het onder 0 word. We zullen het zien....
De leidingen moet ik nog iets mee... Deze moet ik nog zien te isoleren, zodat we niet bij de eerste de beste keer grond vorst alles dicht hebben zitten.
Al met al... Het is woonbaar, en het voelt voor ons allen als thuis.
Hopelijk kan ik binnenkort met de volgende blog komen... Dat de vergunning binnen is
Tijdelijk wonen
En daar ga je... Verkocht onder voorbehoud, daarna verkocht... En dan tussen wal en schip.
Het wachtten is op de vergunningen. Waar moet je dan wonen... En hoe wil je dat gaan doen?

We konden hier in de buurt wat woon units kopen. 3 stuks van 3x6. Totaal 54m2
In de buurt... Dat moet makkelijk te regelen zijn. De vervoerder was niet heel scheutig met informatie over wanneer hij precies langs kwam. Ik werk s nachts, en kreeg bij mijn laatste nacht om 7 uur een sms van de verkopers van de units dat de vervoerder om 14u langs wilde komen. Oeps... Units moesten nog los gemaakt worden... Na een heerlijk verkwikkende slaap van 3 uur daar maar heen gegaan met mijn accu boor en wat ander gereedschap. Om 20u stonden ze dan alle 3 op hun plek.
Nog niet aan elkaar, maar ze stonden redelijk waterpas.
In de dagen daarna met veel hulp de units aan elkaar gezet, riool gegraven, elektriciteit en water aangesloten. En uiteindelijk alles verhuisd...
De gemeente beloofde ons meteen een tijdelijk adres te geven... Dit duurt nu al meer als een week, en als je belt regelen ze het meteen... Morgen weer bellen, ik sla het nummer maar op denk ik. Ik bel het vaak genoeg
Ik heb er zin aan! Laat de vergunning maar komen
Het wachtten is op de vergunningen. Waar moet je dan wonen... En hoe wil je dat gaan doen?

We konden hier in de buurt wat woon units kopen. 3 stuks van 3x6. Totaal 54m2
In de buurt... Dat moet makkelijk te regelen zijn. De vervoerder was niet heel scheutig met informatie over wanneer hij precies langs kwam. Ik werk s nachts, en kreeg bij mijn laatste nacht om 7 uur een sms van de verkopers van de units dat de vervoerder om 14u langs wilde komen. Oeps... Units moesten nog los gemaakt worden... Na een heerlijk verkwikkende slaap van 3 uur daar maar heen gegaan met mijn accu boor en wat ander gereedschap. Om 20u stonden ze dan alle 3 op hun plek.
Nog niet aan elkaar, maar ze stonden redelijk waterpas.
In de dagen daarna met veel hulp de units aan elkaar gezet, riool gegraven, elektriciteit en water aangesloten. En uiteindelijk alles verhuisd...
De gemeente beloofde ons meteen een tijdelijk adres te geven... Dit duurt nu al meer als een week, en als je belt regelen ze het meteen... Morgen weer bellen, ik sla het nummer maar op denk ik. Ik bel het vaak genoeg
Ik heb er zin aan! Laat de vergunning maar komen
Verkocht!
Ja, en daar was dan het moment. Verkocht... Geen voorbehoud, dr uit! Half juni moeten we eruit zijn!
Er zijn nog maar wat kleine details te gaan voordat we in onze nieuwe woning kunnen trekken....
- De tijdelijke woonunits zijn gekocht.
- Van de week definitieve tekening om mee naar de gemeente te gaan. Ja inderdaad... We hebben nog steeds geen vergunning.
- Een geschikte aannemer vinden! Er zijn al wat offerte`s binnen gedruppeld. Het lijkt in ieder geval financieel haalbaar
Nu nog van dit:


Naar dit:

Makkie...
http://i19.photobucket.co...onbebouwd_zpso0b85gsz.png
http://i19.photobucket.co...bouwd%201_zpsytbaiwj5.jpg
Er zijn nog maar wat kleine details te gaan voordat we in onze nieuwe woning kunnen trekken....
- De tijdelijke woonunits zijn gekocht.
- Van de week definitieve tekening om mee naar de gemeente te gaan. Ja inderdaad... We hebben nog steeds geen vergunning.
- Een geschikte aannemer vinden! Er zijn al wat offerte`s binnen gedruppeld. Het lijkt in ieder geval financieel haalbaar
Nu nog van dit:


Naar dit:

Makkie...
http://i19.photobucket.co...onbebouwd_zpso0b85gsz.png
http://i19.photobucket.co...bouwd%201_zpsytbaiwj5.jpg
Verkocht onder voorbehoud
Allereerst misschien een kleine voorstelronde...
Ik ben Dennis, en ik woon (nog) in Assen samen met mijn gezin.
In het nachtelijk leven werk ik als begeleider nachtzorg op een instelling voor verstandelijk gehandicapten.
Samen met mijn vrouw hebben wij altijd gezegd dat als we later groot waren, we "buiten" wilden gaan wonen. Helaas kwamen we voor elke mooie buitenwoning een ton tekort
Mijn zwager en schoonzus hebben zeer recentelijk een woning aangekocht waar we 2 woningen van willen proberen te maken. In de voorbereidende fase klonk dat makkelijk en haalbaar.
Deze blog`s vul ik met zin en onzin over dit idee.

Mijn zwager en schoonzus hebben de boerderij ondertussen gekocht.
We zijn al enkele maanden geleden begonnen om samen met een architect te kijken naar de mogelijkheden de boerderij op te splitsen. Dit lijkt erg positief, dwz de gemeente heeft theoretisch geen bezwaar tegen de splitsing. Het oorspronkelijke idee was om te wachtten tot vergunningen etc rond waren. Ons huis is echter nu verkocht onder voorbehoud en het word een beetje meer een sprong in het diepe.
Vanaf half juni wonen we in bouwketen naast de boerderij hopen we...
In het deel van de boerderij willen we een woning realiseren. De oppervlakte van de woning is dan 15x15m2. De bedoeling is dat alles gelijkvloers word, met de mogelijkheid tot maken van kamers op verdieping als we daar aan toe zijn. Het opvragen van offerte`s van aannemers is begonnen.
Het is voor mij zeer moeilijk een inschatting te maken van wat zo`n verbouwing moet gaan kosten.
Vandaag iig eens een babbel gemaakt bij een groot installateur bedrijf over pellet ketels, warmtepompen en zonnepanelen. Ik wil graag zonder gas aansluiting.
In een notedop: pelletketel is ongeveer 10duizend (subsidie etc), en kost aan pellets ongeveer 100 euro in de maand. Warmtepomp met zonnenpanelen (genoeg om de warmtepomp te laten draaien) zal op ongeveer 22 duizend komen, maar dan heb je bijna tot geen maandelijkse lasten.
Ik schrijf deze blog ook in de hoop wat reactie te krijgen. Ik ben een bouw leek, en ook een energie leek
Ik zal bij nieuw nieuws een nieuw blogje schrijven als er mensen de moeite nemen het te lezen en hopelijk te reageren 
Ik ben Dennis, en ik woon (nog) in Assen samen met mijn gezin.
In het nachtelijk leven werk ik als begeleider nachtzorg op een instelling voor verstandelijk gehandicapten.
Samen met mijn vrouw hebben wij altijd gezegd dat als we later groot waren, we "buiten" wilden gaan wonen. Helaas kwamen we voor elke mooie buitenwoning een ton tekort
Mijn zwager en schoonzus hebben zeer recentelijk een woning aangekocht waar we 2 woningen van willen proberen te maken. In de voorbereidende fase klonk dat makkelijk en haalbaar.
Deze blog`s vul ik met zin en onzin over dit idee.

Mijn zwager en schoonzus hebben de boerderij ondertussen gekocht.
We zijn al enkele maanden geleden begonnen om samen met een architect te kijken naar de mogelijkheden de boerderij op te splitsen. Dit lijkt erg positief, dwz de gemeente heeft theoretisch geen bezwaar tegen de splitsing. Het oorspronkelijke idee was om te wachtten tot vergunningen etc rond waren. Ons huis is echter nu verkocht onder voorbehoud en het word een beetje meer een sprong in het diepe.
Vanaf half juni wonen we in bouwketen naast de boerderij hopen we...
In het deel van de boerderij willen we een woning realiseren. De oppervlakte van de woning is dan 15x15m2. De bedoeling is dat alles gelijkvloers word, met de mogelijkheid tot maken van kamers op verdieping als we daar aan toe zijn. Het opvragen van offerte`s van aannemers is begonnen.
Het is voor mij zeer moeilijk een inschatting te maken van wat zo`n verbouwing moet gaan kosten.
Vandaag iig eens een babbel gemaakt bij een groot installateur bedrijf over pellet ketels, warmtepompen en zonnepanelen. Ik wil graag zonder gas aansluiting.
In een notedop: pelletketel is ongeveer 10duizend (subsidie etc), en kost aan pellets ongeveer 100 euro in de maand. Warmtepomp met zonnenpanelen (genoeg om de warmtepomp te laten draaien) zal op ongeveer 22 duizend komen, maar dan heb je bijna tot geen maandelijkse lasten.
Ik schrijf deze blog ook in de hoop wat reactie te krijgen. Ik ben een bouw leek, en ook een energie leek